Prenova tržnice v Tolminu
Intervencija: LEADER – Lokalni razvoj, ki ga vodi skupnost

Naziv projekta: Prenova tržnice v Tolminu
Prijavitelj projekta: Občina Tolmin
Partnerji projekta: Združenje ekoloških kmetov Severne Primorske
Izvedba projekta: 17. 7. 2025–31. 8. 2027
Skupna vrednost projekta: 848.094,27 EUR
Zaprošeno sofinanciranje: 199.999,98 EUR
Kratek opis projekta
Projekt je odgovor na dotrajano in nefunkcionalno infrastrukturo obstoječe tržnice, ki ne omogoča ustreznih pogojev za prodajo lokalnih pridelkov. Območje se sooča s pomanjkanjem pokritih prodajnih površin, slabo dostopnostjo in omejenimi možnostmi za razvoj ponudbe, kar ovira rast lokalnega gospodarstva. Obstoječa tržnica nima ustreznega zavetja pred vremenskimi vplivi, sanitarij in sodobnih prodajnih mest, kar zmanjšuje zanimanje ponudnikov in obiskovalcev. Hkrati območje potrebuje več priložnosti za promocijo lokalnih izdelkov ter vključevanje novih ponudnikov, zlasti tistih iz ekološke pridelave. Projekt rešuje te izzive z vpeljavo trajnostne infrastrukture, izboljšanjem dostopnosti, organizacijo izobraževalnih delavnic in promocijskih dogodkov, kar bo spodbudilo rast števila ponudnikov in povečalo prepoznavnost tržnice kot ključnega lokalnega stičišča.
Cilji in rezultati projekta
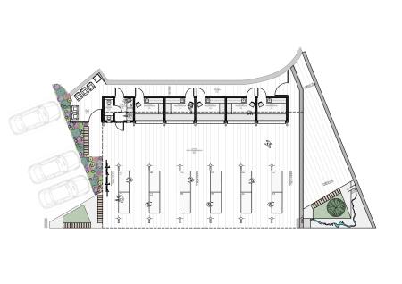
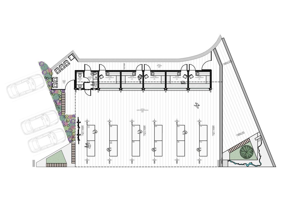
Projekt predvideva prenovo in pokritje tržnice s 15 prodajnimi mesti (za cca 25 različnih ponudnikov) ter 260,40 m² uporabnih površin. Cilj je izboljšati infrastrukturo, povečati število ponudnikov in kupcev, okrepiti prodajo lokalnih pridelkov, samooskrbo ter lokalno ekonomijo. Tržnica bo postala prepoznavno središče kratkih dobavnih verig, kar bo podprto z izvedbo degustacijskih dogodkov, izvedbo EKO praznikov, prazničnih dogodkov Veseli december ter usposabljanj za pridelovalce in predelovalce. Poleg tega bo organiziran ogled dobre prakse, ki bo ponudnikom omogočil prenos znanja in novih idej. Projekt bo pomembno prispeval k razvoju lokalne skupnosti in trajnostnemu povezovanju ponudnikov in kupcev.
Vsebina projekta
Z izvedbo investicije so predvideni rekonstrukcija tlaka obstoječega trga, ureditev nadstreška nad odprtim prodajnim prostorom, kjer bodo postavljene stojnice, odstranitev starih in postavitev novih enotnih objektov, namenjenih prodaji pridelkov/izdelkov, celostna ureditev pripadajočega javnega prostora na tržnici in postavitev urbane opreme, ureditev elektro priključkov (javna razsvetljava, električni priključki prodajnih kioskov …), odstranitev obstoječega vodnjaka, ureditev pitnika …
Časovnica projekta
Gradbeno dovoljenje za investicijo je že bilo pridobljeno in projektna dokumentacija za izvedbo izdelana. V septembru 2025 je bilo izvedeno javno naročilo za izbor izvajalca. Najugodnejšo ponudbo na avgusta objavljeno javno naročilo je oddalo podjetje Gordeja d.o.o. z Vrhnike kot vodilni partner izvajalca. Z gradbenimi deli so začeli v oktobru, rok za dokončanje pa je 30. april 2026.
![]()
Spletna povezava:
https://www.gov.si/zbirke/projekti-in-programi/skupna-kmetijska-politika/
Podatki o financiranju
Skupna vrednost projekta znaša 848.094,27 EUR. Občina Tolmin je prek razpisa LAS Dolina Soče pridobila 200.000 EUR sofinancerskih sredstev, ki jih zagotavljata Evropska unija in Republika Slovenija iz Evropskega kmetijskega sklada za razvoj podeželja. Preostanek investicije pokriva z lastnimi proračunskimi sredstvi.




